3/6 Bennetts Road MORNINGTON VIC
GREAT INVESTMENT OPPORTUNITY
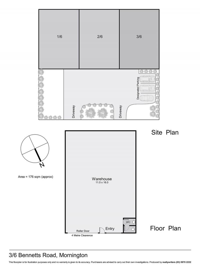
- Approximately 180sqm
- Currently leased at $1,600 per calendar month + outgoings
- Convenient location with off street parking
Opportunity to buy neighboring factory, contact agent for further information.
- Currently leased at $1,600 per calendar month + outgoings
- Convenient location with off street parking
Opportunity to buy neighboring factory, contact agent for further information.